販売型コンセプトハウスが完成しました! 【吹き抜けリビングと土間が織りなす贅沢な暮らし】
2024年06月01日


福知山市土師新町にて、「趣味を楽しみ、暮らしを豊かにする」をコンセプトに設計した、HASI HAUSの販売型コンセプトハウスが完成しました!!
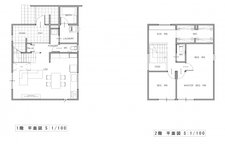
趣味を楽しむ約4帖の玄関土間や、用途に合わせて多目的に使えるフリースペース。家事ラク動線といった、建築士こだわりのポイントが詰め込まれた住宅になっています。
暑さ、寒さの厳しい福知山市でも健康に快適に過ごしていただけるよう、C値0.34 UA値0.46に。
夏の地熱(太陽熱エネルギー)を床下に蓄え、冬は蓄えたエネルギーを利用して家中を暖かくする「地熱住宅」を採用。
真夏でも、真冬でもエアコン1台で快適に過ごせる。
HASI HAUSの家づくりをぜひご体感ください。
【会場のご案内】
〒620-0855 京都府福知山市土師新町3丁目5-9(駐車場完備)
詳しい会場地図はこちら↓
【物件情報】
販売価格 / 3,280万円(税込)
月々支払い / 88,817円(返済期間35年/変動金利0.75%の場合)
間取り / 2LDK+土間スペース(4帖)+2Fフリースペース(3帖)
建物施工面積 / 101㎡(32.83坪)
建物延べ床面積 / 96.05㎡(29.06坪)
敷地面積 / 152.73㎡(46.20坪)

①あなた色に染まる、約4帖の広々土間
ガーデニング、道具のお手入れ、収納など、あなたのライフスタイルに合わせて自由自在に使える土間スペース。自分だけの特別な空間として、思いのままにアレンジしてみませんか?
②家族の洋服をひとまとめ!
洋服を全てここにまとめ、各部屋をスッキリと!
フリースペースに干した洗濯物をそのままWICに収納できる無駄のない家事動線を実現。毎日の家事をもっと効率的に!
③自分に合った用途を見つけよう!
多用途に活用できるフリースペース。ランドリールーム、ライブラリースペース、さらにはヨガスペースとしてもぴったり。あなたのアイデア次第で無限の可能性が広がります!
④心安らぐLDK
大きなダイニングテーブルが置けるゆったりLDK。
吹き抜けを通して、光が降り注ぐ開放的な空間を演出。
ずっと居たくなるような、快適で魅力的な空間です。
【物件概要】
物件概要 ■取引形態/売主 ■売主/橋本工業株式会社 ■所在地/京都府福知山市土師新町三丁目5番9■敷地面積/152.73㎡(46.21坪) ■建築施工面積/101.01㎡(30.55坪) ■建物延べ床面積/96.05㎡(29.05坪) ■構造/木造 ■物件価格/32,800,000円(税込) ■地目/宅地 ■用途地域/準工業地域、市街化区域 ■道路幅員/北側6.0mアスファルト舗装(公道) ■私道負担/なし ■設備/電気:関西電力 ガス:個人LPG 上下水道:公営 雨水:側溝 ■水道加入金・検査料/172,000円(20mm・税込)■その他の規制/道路斜線制限有、隣地斜線制限有、北側斜線制限無、日影規制有 ■交通/JRバス停「土師新町」より徒歩1分■建ぺい率/60% ■容積率/200% ■建物建築確認済証番号/第R05認研府0646号 ■開発許可番号/京都府中丹西土木事務所指令30中西土建台10号の6
※販売価格の他、別途登録免許税・不動産取得税・収入印紙等費用が必要となります。
※銀行等住宅ローンの場合は、銀行手続き費用、保証料等が必要となります。